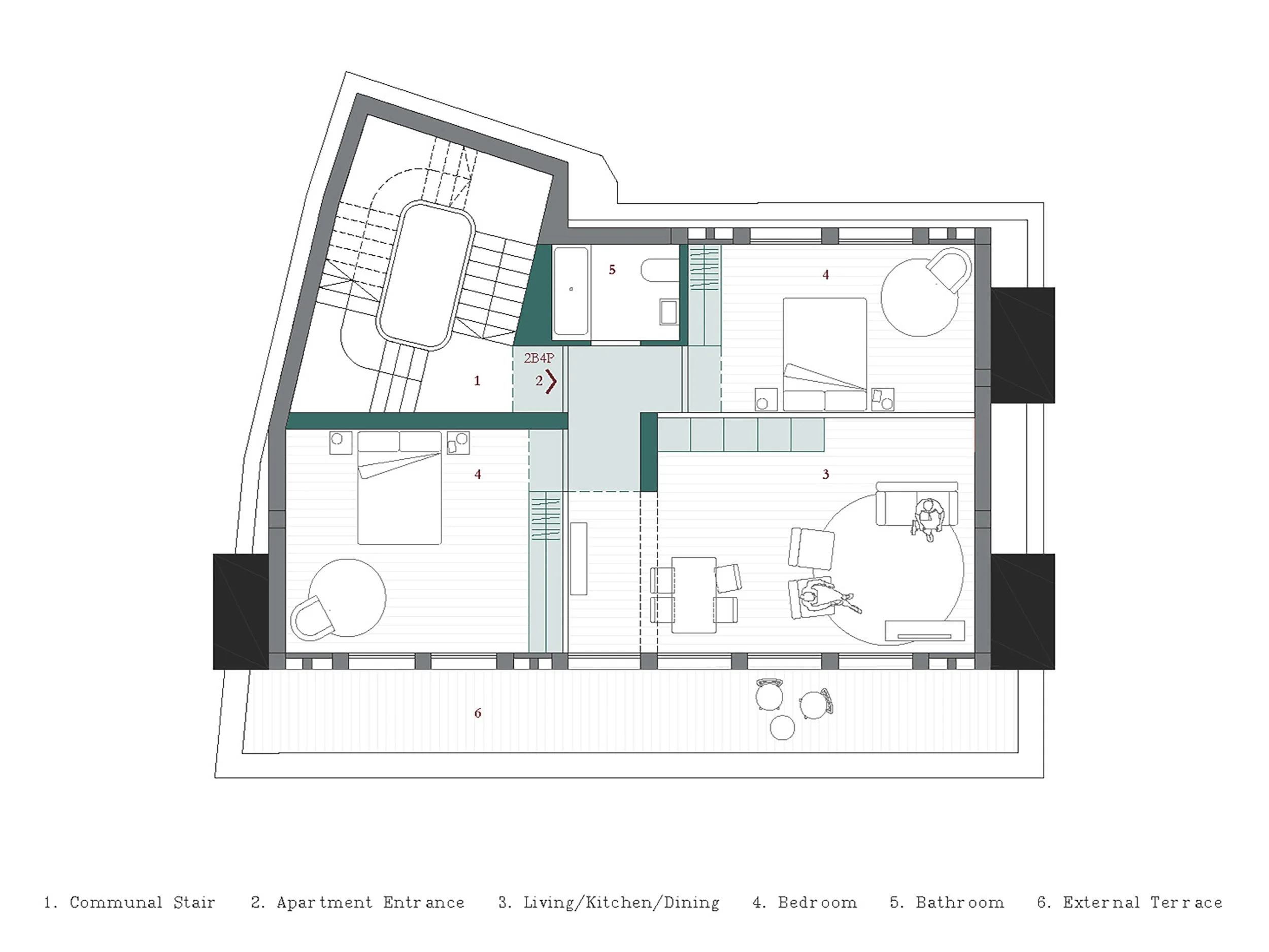
Housing Unlocked

In March 2021, Bank of Ireland announced the closure of 103 regional branches, fundamentally altering the physical, social and economic landscape of Irish towns. As these unique bank buildings were parcelled up for sale, we started to consider their legacy and latent potential. Our idea reacts to the supply crisis within the housing market and reimagines the value and currency of these bank buildings as urban vessels within which housing opportunities can be explored. Firstly, for homes above the bank, and secondly through opening up the generous banking hall as a covered freespace that unlocks backland housing sites and space for wild nature, play and urban growing. We propose to recast the built artefacts of the infamous Irish banking system to deliver sustainable, beautiful homes and communal spaces that augment the urban morphology and ritual of everyday life in Irish towns. In this way, perhaps we can begin Building Societies.

Building Societies was a proposal won through competition and part of Housing Unlocked, an exhibition supported by the Irish Architecture Foundation and the Housing Agency.

Our exhibition proposal extracts the thickset stone and brick facade of the bank from its context. This artefact is placed on a plinth, a classical notion of the elevated, exalted figure. Its scale is ambiguous, bigger than a Dolls-house, but not large enough to inhabit, suggesting a shift from one state to another. The additional rooftop housing delicately hovers above the solid facade, a materially distinct addition suggesting a new purpose for this building within the life of Irish Towns. Visitors will be presented with this Potemkin facade as they enter the space, yet additional layers beyond are visible. Exhibition fabrication by Alan Meredith Studio. Photographs 2 to 8 above copyright of Ste Murray.

The morphology of Irish Towns commonly places bank buildings at key intersections, establishing the potential for additional building height to be amplified in its impact on the townscape. Town Squares have typically become car parks, and High Street pavements are narrow. The covered Banking Hall therefore fulfils a public realm need, whilst acting as the key to unlocking the housing potential of The Backlands, and its opportunity to bring wild nature, play and public gardens into the life of the town. Substantial brick and stone construction is isolated to institutional buildings, shallow surfaces in brightly painted render typically define the character of Irish High Streets, we sought to carry this language through the Banking Hall into the Backlands.